Nhà cấp 4 mái thái luôn là sự cân nhắc phổ biến khi mọi người muốn xây dựng một tổ ấm cho riêng mình. Có nhiều lý do để họ làm vậy, đa phần vì đây là kiểu thiết kế tối ưu công năng và phù hợp với văn hóa Á Đông.
Không chỉ thế, việc xây nhà cấp 4 mái thái còn mang lại nhiều lợi ích tuyệt vời cho gia chủ. Cùng Khang Thịnh đào sâu về các khía cạnh của các mẫu nhà cấp 4 mái thái và chiêm ngưỡng các mẫu nhà mái thái đẹp ngay sau đây!
Mục lục
- 1 1. Nhà mái Thái là gì?
- 2 2. Ưu điểm và nhược điểm của nhà phố mái Thái
- 3 3.Tổng hợp các mẫu nhà mái Thái đẹp không nên bỏ qua
- 3.1 3.1 Nhà cấp 4 mái Thái mang phong cách hiện đại đơn giản
- 3.2 3.2 Nhà mái Thái cấp 4 mang phong cách truyền thống
- 3.3 3.3 Nhà cấp 4 mái Thái theo phong cách Á Âu
- 3.4 3.4 Nhà cấp 4 mái Thái mang phong cách thuộc địa hiện đại
- 3.5 3.5 Nhà mái Thái 2 tầng mang phong cách hiện đại sang trọng
- 3.6 3.6. Mẫu nhà 2 tầng mái thái tân cổ điển đẹp âm hưởng Châu Âu
- 3.7 3.7 Nhà 1 trệt 1 lầu mái thái truyền thống điển hình
- 3.8 3.8 Nhà đẹp 2 tầng mái thái kết hợp truyền thống và hiện đại
- 3.9 3.9 Nhà phố mái Thái 3 tầng tân cổ điển sang trọng
- 3.10 3.10 Thiết kế nhà mái Thái lệch tầng phong cách phương Đông truyền thống
1. Nhà mái Thái là gì?
Nhà mái Thái là kiểu nhà theo kiến trúc thấp tầng, chủ yếu là 1 trệt 1 tầng, có dạng ngói và được xếp chồng lên nhau, thường có độ dốc trong khoảng 45 độ. Thiết kế mái Thái rất được ưa chuộng, có nhiều loại mái khác nhau tùy theo khí hậu, hình dạng mái nhà sẽ biến đổi rất nhiều giữa các vùng. Các bộ phận trong thiết kế từ phần mái, cửa chính, cửa sổ, mái che đều thể hiện nét kiến trúc Thái đặc trưng.
Thiết kế nhà mái thái được ưa chuộng
Nhà kiểu mái Thái thường thấy ở nông thôn hay các khu đô thị đang phát triển. Chiều cao của những ngôi nhà mái Thái này sẽ cao hơn rất nhiều so với những ngôi nhà mái bằng. Độ dốc của mái tạo không gian tản nhiệt ra ngoài tốt hơn. Mái Thái cần được lát bằng ngói lợp, tùy vào vật liệu sẵn có, ngói lợp bằng đất sét cho nhiệt độ thấp hơn so với ngói xi măng.

Nhà mái Thái đa dạng về kiểu dáng màu sắc
Những mẫu nhà mái Thái đẹp hiện nay rất đa dạng về nhiều kiểu dáng khác nhau với đầy đủ mẫu mã như ngói sóng lớn ngói sóng nhỏ hay mái giả đá,.. Thông thường gia chủ sẽ chọn kiểu mái chữ A, mái giật cấp có phần mái đua ra khỏi thân nhà, tạo khối cho tổng thể ngôi nhà.
2. Ưu điểm và nhược điểm của nhà phố mái Thái
Nhà mái Thái có nhiều ưu điểm về khả năng tản nhiệt, chống trọi với mưa gió tuy nhiên lại cần nhiều sự tỉ mỉ và chính xác cao. Vì thế mà Công ty thiết kế xây dựng Khang Thịnh sẽ đề cập tới những ưu và nhược điểm quan trọng để bạn đọc lưu ý:
Ưu điểm nhà mái Thái cấp 4
- Mẫu nhà mái Thái có tính năng tản nhiệt chống nóng, vì có độ dốc nghiêng vừa phải làm cho nước mưa rơi nhanh chóng, không bị nước ứ đọng trên mái.
- Bảo vệ ngôi nhà khỏi thấm dột, ngấm nước, gia tăng tuổi thọ cho mái nhà.
- Thiết kế và xây dựng nhà đẹp mái Thái sẽ tránh được hiện tượng tích tụ khí trong phong thủy.
- Mái nhà dốc sẽ cung cấp bóng râm cho ngôi nhà và trông ngôi nhà đồ sộ hơn so với các mái nhà khác.
- Là nơi lý tưởng phù hợp cho khí hậu nhiệt đới gió mùa tại Việt Nam.
- Nhà mái Thái đa dạng kiểu dáng có thể thay đổi tùy theo sở thích của gia chủ.

Mẫu nhà phố mái thái cổ điển, sang trọng
Nhược điểm mẫu nhà mái Thái
- Chi phí xây dựng nhà phố mái Thái sẽ đắt hơn những kiểu nhà mái khác.
- Thời gian thi công cò thể lâu hơn vì cần sự tỉ mỉ, yêu cầu độ chính xác cao.
- Sau khi thi công, nêu muôn xây thêm tầng thì rất khó khăn, bất tiện, bắt buộc phải dỡ bỏ phần mái ban đầu đi.

Nhà mái thái cần độ tỉ mỉ, chính xác cao
3.Tổng hợp các mẫu nhà mái Thái đẹp không nên bỏ qua
3.1 Nhà cấp 4 mái Thái mang phong cách hiện đại đơn giản
- Tổng diện tích đất: 1000m2
- Diện tích nhà: 8m x 18m
- Phong cách nhà phố: Hiện đại
- Thiết kế bao gồm: 1 phòng khách, 3 phòng ngủ, 1 bếp và 2 WC. Với phòng ngủ chính có WC bên trong, phần phụ tiếp nối với bếp là nơi giặt phơi, WC và sàn rửa ngoài.
Nếu Anh Chị thích sự đơn giản, không cầu kì, không gian vừa đủ nhu cầu cho một nơi sinh sống thì nhà vườn cấp 4 này sẽ là nơi phù hợp vì tổng thể ngôi nhà đã toát lên được vẻ đẹp dân dã, cây nhà lá vườn đậm chất Việt Nam.


- Tổng quan nhà cấp 4 mái thái 3 phòng ngủ (Nguồn Sưu tầm)
Với khoảng không gian xanh thoáng đãng đã được bao lấy ngôi nhà có thể lấy sáng và gió tự nhiên khá dễ dàng, mang cảm giác an toàn, thân thuộc khó tả. Cùng với nhân vật chính là căn nhà mái Thái cấp 4 này tuy không to lớn nhưng được thi công chắc chắn. Với phần mái lợp màu xám bao phủ căn nhà tránh được thời tiết mưa nắng thất thường, có 2 sảnh chính thuận tiện cho các sinh hoạt hằng ngày của gia chủ.



- Khuôn viên xung quanh nhà mái thái
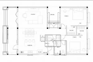
Mẫu nhà cấp 4 mái thái 3 phòng ngủ này được chia ra làm 2 sảnh phân ra lối đón khách và sinh hoạt trong nhà. Phòng khách, phòng thờ tách biệt với nhau. Không gian bếp rộng với thiết sảnh phụ để thoáng khí, khu vực bồn rửa và nấu nướng tách ra để dễ dàng lau dọn. Với 3 phòng ngủ được xây sát nhau. Điều này sẽ giúp cho lối đi trong nhà rộng rãi hơn.

- Mặt bằng tầng trệt của nhà vườn cấp 4 có 3 phòng ngủ (Nguồn: Sưu Tầm)
3.2 Nhà mái Thái cấp 4 mang phong cách truyền thống
- Tổng diện tích đất: 26.620m2
- Diện tích nhà: 9m x 14.5m
- Phong cách thiết kế: Truyền thống
- Thiết kế bao gồm: 1 phòng khách, 3 phòng ngủ, 1 bếp và 2 WC, khu vực để xe ô tô.
Đây là nhà cấp 4 mái Thái truyền thống ấm áp với gam màu cam và nâu làm chủ đạo thu hút nhiều ánh nhìn, gây ấn tượng ngay lần đầu tiên.
Với khuôn viên rộng, hướng đến các yếu tố tự nhiên, giản lược những chi tiết không cần thiết, tại các phía ngôi nhà được trang bị hệ cửa kính lớn giúp lấy tối đa ánh sáng và gió mang cảm giác hòa mình cùng thiên nhiên, tầm nhìn không bị cản trở.



- Tổng quan nhà cấp 4 mái Thái 3 phòng ngủ (Nguồn: Sưu tầm)
Thiết kế ngôi nhà có 3 phòng ngủ, trong đó một phòng được dùng làm phòng làm việc vô cùng tiện dụng. Những phòng ngủ còn lại đều có phòng tắm riêng, xây thêm WC nhỏ để tiện sử dụng ở các khu vực khác.

- Mặt bằng tầng trệt nhà cấp 4 mái Thái (Nguồn: Sưu tầm)
3.3 Nhà cấp 4 mái Thái theo phong cách Á Âu
- Tổng diện tích đất: 769.4m2
- Diện tích nhà: 9.2 x 16m
- Phong cách thiết kế: Á Âu
- Thiết kế bao gồm: 1 phòng khách, 2 phòng ngủ, 2 WC, 1 bếp, 1 phòng giặt đồ.
Với sự kết hợp hài hòa giữa phong cách thiết kế cổ điển Châu Á và hiện đại của Châu Âu. Ngôi nhà gây ấn tượng bởi các khung vòm nối liền giữa các trụ cột nhà mang hơi hướng Địa Trung Hải cùng với hệ thống mái Thái vững chắc.


- Mặt tiền nhà vườn mái Thái phong cách châu Âu (Nguồn: Sưu tầm)
Khuôn viên xung quanh ngôi nhà được trang trí theo phong cách nông thôn gần gũi với thiên nhiên. Với lối đi bên hông nhà được trang trí bởi những tiểu cảnh sinh động, có thể tự do ngắm cảnh, tận hưởng những cơn gió tự nhiên luồng vào trong từng ngóc ngách của ngôi nhà.


- Khuôn viên sân vườn xung quanh ngôi nhà (Nguồn: Sưu tầm)
Kết cấu ngôi nhà cấp 4 nóc Thái này được tách thành 2 khối độc đáo: khối trước dành cho sinh hoạt chung và tiếp khách, khối nhà sau là 2 phòng ngủ cùng với WC.

Mặt bằng tầng trệt của nhà mái Thái phong cách châu Âu (Nguồn: Sưu tầm)
3.4 Nhà cấp 4 mái Thái mang phong cách thuộc địa hiện đại
- Tổng diện tích đất: 289m2
- Diện tích nhà: 134m2
- Phong cách thiết kế: thuộc địa hiện đại
- Thiết kế bao gồm: 3 phòng ngủ, 2 WC, nhà để xe, 1 bếp + phòng ăn.
Nhà cấp 4 mái Thái kiểu thuộc địa này có thiết kế độc lạ với bãi giữ xe nối liền ngay bên hông căn nhà. Phần mái có thiết kế hiệu ứng ngói trên những tấm sắt mạ kẽm nhịp dài, bên dưới được hỗ trợ bởi các thanh thép chắc chắn tránh thiên tai. Cửa sổ là cửa lùa nhôm kính được lấy ý tưởng theo kiểu Pháp được sơn tệp màu với mái ngói mang cảm giác hài hòa dễ chịu cho tổng thể ngôi nhà.



- Tổng thể nhà cấp 4 mái Thái mang phong cách thuộc địa (Nguồn: sưu tầm)
Ngôi nhà này với phòng khách có cấu trúc mở, cung cấp không gian cho khu vực tiếp khách và ăn uống. Lối thiết kế rộng, thoáng sẽ giúp cho việc sinh hoạt của gia đình cũng trở nên dễ dàng.

- Mặt bằng nhà mái Thái 1 tầng 3 phòng ngủ kiểu thuộc địa (Nguồn: sưu tầm)
3.5 Nhà mái Thái 2 tầng mang phong cách hiện đại sang trọng
- Tổng diện tích đất: 6.9m x 29.8m
- Diện tích nhà: 6.9m x 18m
- Phong cách thiết kế: hiện đại
- Thiết kế bao gồm: 1 phòng khách, 3 phòng ngủ, 3 WC, 1 bếp
Mẫu nhà mái Thái 2 tầng hiện đại này là sự phối hợp nhịp nhàng giữa hình khối và màu sắc tươi sáng, tôn lên vẻ đẹp thanh lịch, nổi bật là mái ngói nâu đen theo hình chữ T mang đến chiều sâu cho ngôi nhà. Ban công bao bọc hành lang ngay tầng 2 kết hợp với tiểu cảnh sân vườn, tạo không gian xanh vừa đủ không kém phần bắt mắt cho ngôi nhà.



- Cận cảnh mẫu nhà 2 tầng mái Thái đẹp
Nhà 1 trệt 1 lầu mái Thái này có sân trước rộng rãi đa năng có thể tổ chức tiệc tùng, chơi thể thao và là nơi đỗ xe lý tưởng nếu gia chủ có chiếc xe con 4 chỗ.


- Toàn cảnh trên cao của mẫu nhà mái Thái 1 trệt 1 lầu (Nguồn: sưu tầm)
Về bố trí mặt bằng, tầng trệt ngôi nhà gồm có phòng khách, bếp ăn, 1 phòng ngủ và 1 nhà vệ sinh chung. Tầng 1 gồm có 1 phòng ngủ Master và WC bên trong, 1 phòng ngủ thường, 1 WC chung, phòng thờ và kho tùy theo mục dích sử dụng.

- Thiết kế nhà 2 tầng mái thái (Nguồn: sưu tầm)
3.6. Mẫu nhà 2 tầng mái thái tân cổ điển đẹp âm hưởng Châu Âu
- Tổng diện tích đất: 268m2
- Diện tích nhà: 9.4m x 17.6m
- Phong cách thiết kế: Tân cổ điển
- Thiết kế bao gồm: 1 phòng khách, 4 phòng ngủ, 4 WC, 1 bếp, 1 phòng thờ
Nhà 2 tầng mái Thái tân cổ điển này thích hợp cho một gia đình đông đúc từ 4 đến 6 người. Mang phong cách bán cổ điển với đường nét tinh tế, sắc trắng thanh lịch. Mặt tiền ấn tượng với thiết kế ban công đậm chất Âu tạo hình cánh cung mềm mại. Nổi bật có các cột đá marble trắng vân mây tạo độ vững chắc cao cho ngôi nhà.

- Mặt tiền ngôi nhà mái Thái (Nguồn: sưu tầm)
Điểm nhấn tiếp theo là hai chóp mái ngói xanh có độ dốc hoàn hảo ghép đôi tạo độ hoành tráng, hài hòa nhưng không kém phần sang trọng.


- Hình ảnh nhà mái thái 2 tầng qua các góc nghiêng (Nguồn: sưu tầm)
Về mặt bằng, tại tầng trệt có 1 phòng đại sảnh + phòng khách, 1 phòng bếp + ăn. Tầng 1 có 1 phòng khách, 3 phòng ngủ, 1 phòng thờ và 3 WC.


- Mặt bằng bố trí 2 tầng của ngôi nhà mái Thái (Nguồn: sưu tầm)
3.7 Nhà 1 trệt 1 lầu mái thái truyền thống điển hình
- Tổng diện tích: 444m2
- Diện tích nhà: 8.1m x 16.4m
- Phong cách thiết kế: truyền thống
- Thiết kế bao gồm: 1 phòng khách, 3 phòng ngủ, 2WC, 1 bếp, 1 phòng đọc sách, 1 phòng thờ.
Nếu anh chị mong muốn có một mái ấm theo hướng hoài cổ, mang âm hưởng truyền thống thì mẫu nhà mái Thái 2 tầng này sẽ làm hài lòng anh chị ngay từ cái nhìn đầu tiên. Mảnh sân vườn rộng lớn được bao phủ với hàng rào chắc chắn là nơi thích hợp cho các hoạt động đa chức năng như vui chơi hay là khu vườn trong mơ nếu gia chủ có sở thích trồng trọt.


- Trực diện nhà 2 tầng mái Thái (Nguồn: sưu tầm)
Sử dụng màu trắng chủ đạo, các khung cửa chính và cửa sổ làm bằng chất liệu gỗ cộng hưởng với nhiều cột nhà cứng cáp tạo sự an toàn, bền vững nhưng cũng không kém phần sang trọng.




- Các phía cạnh của nhà mái Thái 2 tầng (Nguồn: sưu tầm)
Về mặt bằng, tầng trệt ngôi biệt thự có 1 phòng khách, 1 phòng ăn + bếp, 1 phòng đọc sách, 1 phòng ngủ và 1 WC. Tầng 1 có 1 phòng thờ, 2 phòng ngủ và 1 WC.


- Mặt bằng của biệt thự mái Thái 2 tầng (Nguồn: sưu tầm)
3.8 Nhà đẹp 2 tầng mái thái kết hợp truyền thống và hiện đại
- Diện tích nhà: 5x30m
- Phong cách thiết kế: truyền thống kết hợp hiện đại
- Thiết kế bao gồm: 1 phòng khách, 4 phòng ngủ, 4 WC, 1 bếp, 1 phòng thờ
Thiết kế nhà mái Thái theo xu hướng truyền thống và hiện đại hiện đang rất phổ biến cho các gia đình từ nông thôn đến thành thị. Nhà phố mái Thái 2 tầng này tập trung vào không gian phòng ngủ và những phòng chức năng có bố trí đơn giản.

- Tổng quan nhà phố mái Thái 2 tầng 4 phòng ngủ
Phía mặt tiền mái thái 2 tầng này được bảo vệ bởi cổng dạng cuốn an toàn bao kín tầng trệt ngôi nhà tránh trộm cắp. Tầng 1 gây ấn tượng khi có sân thượng trải dài song song đến phía cổng chính. Một nơi tuyệt vời cho mọi thành viên trong gia đình có thể thoải mái làm buổi tiệc nho nhỏ, ngắm cảnh vật xung quanh.


- Nhà phố mái Thái 2 tầng được thiết kế mang tính an toàn cao
Về mặt bằng phía tầng trệt gồm: Phòng khách, bếp và 1 phòng ngủ cho khách và WC. Tầng 1 gồm: 3 Phòng ngủ cho các thành viên với WC trong phòng.

- Bên trong nhà phố với thiết kế hiện đại hợp thời trang
3.9 Nhà phố mái Thái 3 tầng tân cổ điển sang trọng
- Tổng diện tích: 140.2m2
- Diện tích nhà: 5.85m x 15.7m
- Phong cách thiết kế: tân cổ điển
- Thiết kế bao gồm: 1 phòng khách, 3 phòng ngủ, 3 WC, 1 phòng sinh hoạt chung, 1 bếp, 1 phòng thờ
Nhà phố mái Thái 3 tầng này được thiết kế theo phong cách tân cổ điển với tông màu xám trắng làm chủ đạo. Khối hình đơn giản tinh tế cùng mái ngói Thái đặc trưng tô điểm cho sự sang trọng, thu hút mọi ánh nhìn của ngôi nhà.
Phía trước mặt tiền được ốp đá có hoa văn sang trọng khiến cho ngôi nhà có giá trị hơn. Ngôi nhà có nhiều cửa sổ giúp lấy ánh nắng tự nhiên và lưu thông không khí trong nhà đỡ ngộp ngạt. Kết hợp hai loại ban công càng làm cho ngôi nhà trở nên độc đáo hơn


- Phía trước ngôi nhà mái Thái 3 tầng 3 phòng ngủ (Nguồn: sưu tầm)
Nhà 3 tầng mái Thái có sân trước tương đối nhỏ, được bao quanh bởi những bức tường vững chắc. Sân được ốp gạch, nhấn thêm một vài cây xanh làm tổng thể ngôi nhà trở nên hai hòa.

- Khuôn viên công được xây kiên cố, bảo vệ sự an toàn cho ngôi nhà (Nguồn: sưu tầm)
Về mặt bằng, tầng trệt gồm: phòng khách, phòng ăn và 1 WC lớn. Tầng 1 gồm: 1 phòng ngủ Master, 1 phòng ngủ thường và 1 WC. Tầng 2 gồm: 1 phòng ngủ, 1 WC và phòng thờ.



- Mặt bằng chi tiết các tầng của nhà phố mái Thái (Nguồn: sưu tầm)
3.10 Thiết kế nhà mái Thái lệch tầng phong cách phương Đông truyền thống
- Tổng diện tích: 15.5m x 12.0m
- Phong cách thiết kế: Phương Đông
- Thiết kế bao gồm: 3 ban công, 1 phòng khách, 1 phòng ăn + nhà bếp, 4 phòng ngủ, 3 WC
Thiết kế nhà lệch tầng không phổ biến như những kiểu nhà khác. Nhưng, kiểu nhà này có những ưu điểm riêng bởi có một phần của tầng trệt ở một tầng khác với một phần khác, thường là do ngôi nhà được xây dựng trên nền đất dốc. Nếu địa hình đất nền của anh chị dốc hơn bình thường thì nhà mái Thái lệch tầng này sẽ phù hợp hơn cả.

- Tổng quan nhà mái Thái lệch tầng 4 phòng ngủ
Mẫu nhà cấp 4 mái thái đẹp mang phong cách truyền thống bằng cách sử dụng gạch màu hạt dẻ được ốp ngay các trụ cột ngôi nhà. Các bức tường bên ngoài được xử lý bằng bê tông hoàn thiện với lớp sơn màu trắng, sự pha trộn của chúng tạo ra một sự tương phản nhưng vẫn hấp dẫn dễ chịu. Để làm nổi bật điểm nhấn truyền thống, ngôi nhà mang khái niệm lắp ghép mái chéo với ngói màu nâu đất có độ dốc tiêu chuẩn.




- Các phía của nhà mái Thái lệch tầng
Về mặt bằng tầng trệt bên trong có phòng ngủ riêng và phòng tắm. Nhà để xe có vị trí thoải mái ở góc bên phải của ngôi nhà ở tầng trệt. Tầng trên dành riêng cho phòng ngủ, phòng có tủ quần áo không cửa ngăn rộng rãi, nhà vệ sinh riêng và bồn tắm và ban công có thể đi vào phòng ngủ qua cửa kính trượt.


- Mặt bằng nhà mái Thái lệch tầng (Nguồn: sưu tầm)
Trên đây là những mẫu nhà cấp 4 mái Thái đẹp từ kiểu dáng đến phong cách đa dạng, được biến đổi hợp thời, không bao giờ gây thất vọng với mọi người. Hy vọng với top 10 mẫu nhà đẹp trên sẽ giúp anh chị có thêm nhiều ý tưởng thú vị cho ngôi nhà của mình. Nếu anh, chị đang gặp khó khăn trong việc thiết kế và thi công xây dựng nhà mái Thái, hay lên ý tưởng trang trí nội thất vui lòng khảo công ty xây dựng uy tín TPHCM của chúng tôi.


























