Những mẫu thiết kế nhà cấp 4 chưa bao giờ hết hot, đặc biệt vào những năm gần đây. Với sự đa dạng về kiểu dáng, cũng như là giá tiền từ rẻ tới đắt, đa dạng phong cách từ cổ điển tới hiện đại, đặc biệt với mẫu thiết kế nhà cấp 4 3 phòng ngủ ta sẽ có nhiều phương pháp bố trí khác nhau, nhưng vẫn đầy đủ tiện nghi nhằm đáp ứng nhu cầu của mọi người.
Sau đây Công Ty Thiết Kế Xây Dựng sẽ tổng hợp tới mọi người những mẫu thiết kế nhà cấp 4 có 3, 4 phòng ngủ. Bản vẽ thiết kế nhà cấp 4, nội thất nhà cấp 4 có 3 – 4 phòng ngủ với nhiều phong cách cuốn hút, tiện nghi và đẹp nhất trong năm 2021, được đa số mọi người yêu thích.
Mục lục
- 1 11 mẫu nhà cấp 4 đẹp 10m2 3 phòng ngủ đẹp ấn tượng hiện nay
- 1.1 Mẫu nhà cấp 4 100m2 3 phòng ngủ với thiết kế gác lửng
- 1.2 Mẫu nhà cấp 4 mái thái 3 phòng ngủ thiết kế chữ L
- 1.3 Mẫu thiết kế nhà cấp 4 100m2 3 phòng ngủ mái thái đẹp
- 1.4 Mẫu nhà cấp 4 100m2 3 phòng ngủ làm giả biệt thự
- 1.5 Mẫu nhà cấp 4 100m2 3 phòng ngủ đơn giản – hiện đại
- 1.6 Mẫu thiết kế nhà cấp 4 100m2 3 phòng ngủ một phòng thờ đẹp
- 1.7 Mẫu thiết kế nhà cấp 4 đẹp 100m2 3 phòng ngủ có sân vườn
- 1.8 Mẫu nhà cấp 4 100m2 3 phòng ngủ thiết kế mái bằng
- 1.9 Mẫu thiết kế nhà thứ nhất
- 1.10 Mẫu thiết kế nhà thứ hai
- 1.11 Mẫu thiết kế nhà thứ ba
- 1.12 Mẫu thiết kế nhà thứ tư
- 1.13 Mẫu nhà cấp 4 đẹp 100m2 3 phòng ngủ đẹp với giá 500 triệu
- 1.14 Mẫu nhà cấp 4 đẹp 100m2 3 phòng ngủ phong cách Châu Âu
- 2 Lý do tại sao nên chọn mẫu nhà cấp 4 đẹp 100m2 3 phòng ngủ sang trọng – hiện đại?
- 3 Chi phí thi công xây nhà cấp 4 100m2 3 phòng ngủ
11 mẫu nhà cấp 4 đẹp 10m2 3 phòng ngủ đẹp ấn tượng hiện nay
Tùy theo cách chọn, cũng như ý tưởng, mong muốn của quý khách hàng công ty giới thiệu 9 mẫu thiết kế nhà cấp 4 3 phòng ngủ 100m2 theo phong cách riêng biệt hợp lý theo các diện tích như 5x20m, 7x15m, 6x20m….
Mẫu nhà cấp 4 100m2 3 phòng ngủ với thiết kế gác lửng
Ý tưởng thiết kế gác lững cho căn nhà cấp 4 mục đích chỉnh để giải quyết nhu cầu tăng diện tích không gian rộng rãi bên trong nhà ở. Không giống như xây nhà tầng, việc bổ sung thêm tầng gác lửng giúp gia chủ bổ sung thêm được khu vực để bàn thờ cúng tổ tiên, bổ sung thêm 1 hay 2 phòng ngủ và phòng wc chung hoặc biến tấu để trở thành thư phòng làm việc, nơi vui chơi…


Mẫu nhà cấp 4 mái thái 3 phòng ngủ thiết kế chữ L
Tùy theo phong cách, cá tính và phong thủy của gia chủ mà kiểu thiết kế nhà cấp 4 hình vuông, chữ nhật theo lối truyền thống không đáp ứng được thì căn nhà cấp 4 chữ L chắc chắn luôn bảo đảm được kỳ vọng mong muốn của chủ nhân.
Nói về ưu điểm: Thì mẫu nhà này sẽ giải quyết được vấn đề giảm nóng vào mùa hè (nhờ vào khả năng hấp thụ nhiệt), cùng với hệ thống mái thái chữ A giúp bạn dẽ dàng thoát nước vào mùa mưa cực kỳ phù hợp với khí hậu hai mùa mưa, nóng ở Việt Nam. Nhờ vào kiến trúc chữ L mà sảnh chính của chủ nhà được thiết kế rộng hơn giúp ngôi nhà hút gió hơn, đón ánh sáng dễ dàng hơn


Mẫu thiết kế nhà cấp 4 100m2 3 phòng ngủ mái thái đẹp
Trong năm gần đây cụ thể từ 2010 thì kiểu thiết kế mái thái được nhiều gia chủ đưa vào kế hoạch xây nhà của mình. Với lý do đơn giản là khả năng chống nóng và chống ẩm ướt tuyệt vời do khí hậu nhiệt đới. Hay nói một cách văn vẻ hơn là “xây nhà mái thái đông ấm hè mát” là thế.


Mẫu nhà cấp 4 100m2 3 phòng ngủ làm giả biệt thự
Có thể nói đây chính là kiểu thiết kế sang trọng đẳng cấp nhất trong khuôn khổ nhà cấp 4 được thiết kế và thi công. Với cảm hứng đến từ phong cách của Mỹ nơi mà ai ai cũng muốn đi du lịch để có thể biết độ giàu có bậc nhất thế giới. Nhìn chi tiết những nét được nhấn nhá từ trên mái nhà cho đến xuống tới bề mặt tường gạch ốp bên ngoài căn nhà thôi đã muốn vào ở rồi.



Mẫu nhà cấp 4 100m2 3 phòng ngủ đơn giản – hiện đại


Mẫu thiết kế nhà cấp 4 100m2 3 phòng ngủ một phòng thờ đẹp
Có thể nói mẫu nhà cấp 4 3 phòng ngủ một phòng thờ 100m2 xây dựng trên nền đất rộng thuộc kiểu truyền thống từ xưa cho đén nay nhìn rất đơn giản mà tạo được cảm giác ấm cúng của gia đình. Những căn phòng luôn được thiết kế cửa sổ nên sẽ không bao giờ phải lo lắng phòng sẽ bị bí hoặc tối.


Mẫu thiết kế nhà cấp 4 đẹp 100m2 3 phòng ngủ có sân vườn
Không gian hình ảnh cho thấy thiết kế trên mà hơi thở truyền thống của người Việt Nam ta. Không cần xây nhiều phòng ở dư thừa, chủ nhân của ngôi nhà đã phối cảnh kết hợp những cây xanh, nền đá trắng tạo quang cảnh rộng rải, để có thể thư giản nghỉ ngơi và làm bạn với thiên nhiên, hít thở không khí trong lành, thoải mái tản bộ khi mệt mỏi.


Mẫu nhà cấp 4 100m2 3 phòng ngủ thiết kế mái bằng
Cùng điểm qua 1 số mẫu nhà cấp 4 mái bằng phố biến nhất hiện nay nhé!
Mẫu thiết kế nhà thứ nhất
Tương ứng với thiết kế của mẫu nhà cấp 4 3 phòng ngủ 100m2 mái bằng đã đáp ứng được nhu cầu chi phí thấp rơi vào khoảng 300 triệu VNĐ. Có tiện nghi và ứng dụng cao, thời gian xây dựng trong thời gian ngắn. Mục tiêu đơn giản, ngắn gọn mà vẫn hài hòa và hợp lý mang lại sự hài lòng của gia chủ.

Mẫu thiết kế nhà thứ hai
Thay vì chọn lựa các ngôi nhà cấp 4 mái thái, bạn hãy thử tham khảo những mẫu nhà được xây dựng với kiến trúc mái bằng đầy độc đáo này nhé!

Những bậc tam cấp được các KTS tính toán và thiết kế dựa theo phong thủy của gia chủ, nhằm mang đến sự may mắn cũng như là tài lộc dành cho những thành viên trong gia đình.
Mẫu thiết kế nhà thứ ba
Việc xây nhà kiểu này thường áp dụng cho tông màu sơn trắng kết hợp cửa gỗ nhìn từ bên ngoài tạo được nét nổi bật, và cuốn hút lạ thường.

Mẫu thiết kế nhà thứ tư

Ngoài ra, những viên gạch được ốp tại mặt trước ngôi nhà cũng phần nào tạo nên nét đẹp độc đáo cho căn nhà cấp 4
Mẫu nhà cấp 4 đẹp 100m2 3 phòng ngủ đẹp với giá 500 triệu
Hệ mái thái đỏ tươi nổi bật trên gam màu trắng chủ đạo của căn nhà, kết hợp cùng với những thanh nan màu gỗ chạy ngang.


Ngoài ra, hệ thức cột vuông cũng được dùng tại tiền sảnh nhằm thể hiện sự vững chãi, chắc chắn.
Mẫu nhà cấp 4 đẹp 100m2 3 phòng ngủ phong cách Châu Âu
Có thể nói chủ nhân đã lựa chọn phong cách châu Âu với mong muốn ngôi nhà của mình trở nên thật độc đáo, khác biệt, mới lạ duy nhất mà lại không tách biệt ra khỏi tầm nhìn chung.


Lý do tại sao nên chọn mẫu nhà cấp 4 đẹp 100m2 3 phòng ngủ sang trọng – hiện đại?
Cùng điểm qua một số ưu điểm, nhược điểm mà ngôi nhà cấp 4 mang lại cho gia đình thân yêu của bạn.
Ưu điểm

- Kiểu nhà này phù hợp với gia đình hai thế hệ bao gồm vợ chồng 2 con vì đơn giản con cái lớn lên sẽ có muốn phòng riêng không cạnh tranh đúng không nào. Vấn đề khá đau đầu này đã được giải quyết với mẫu thiết kế nhà cấp 4 3 phòng ngủ
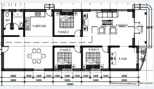
- Với kiểu nhà này thông thường nhất sẽ gồm ba phòng ngủ, 1 phòng khách, phòng bếp, bàn ăn, một nhà vệ sinh và 1 phòng thờ.
- Không gian sống hợp lý tạo nên cảm giác thoải mái trong gia đình hơn nữa cũng gần gủi với thiên nhiên.
- Tùy theo điều kiện cũng như diện tích vốn có thì gia đình có thể lựa chọn từ 80m2 đến 150m2. Không nhất định cứ phải là 100m2. Sẽ được bộ phận thiết kế bổ trí những công năng hợp lý.
- Đa dạng mẫu mã tùy theo phong cách thiết kế: Tại sao lại như thế? Tùy theo diện tích vốn có của chủ nhà mà có kiểu thiết kế riêng như nhà cấp 4 giả biệt thự, nhà vườn, kiểu mái thái hay chữ L, phong cách châu âu ….
- Chi phí xây nhà thấp và thời gian thi công hoàn thành ngắn hạn. Mức phí xây nhà rơi vào khoảng 600tr đến 800tr (bao gồm các chi phí phát sinh)
- Ngăn chặn những rủi ro xảy ra cao.
Nhược điểm
- Như đã nói bên trên diện tích đất cần ít nhất cũng 80m2. Nên với những diện tích nhỏ hơn sẽ rất khó để thiết kế và xây dựng. Đương nhiên cũng có thể xây dựng được nhưng sẽ bị cảm giá gò bó và chật hẹp.
- Không gian không được rộng rãi và thông thoáng như nhà tầng. Một ví dụ rõ ràng hơn: Phòng khách của ngôi nhà 5×20 xây tầng thường sẽ được thiết kế không gian riêng biệt, có ngăn cách một cách rõ ràng không chung không gian thêm về phòng ăn & bếp.
Chi phí thi công xây nhà cấp 4 100m2 3 phòng ngủ

- Chi phí thi công xây dựng nhà cấp 4 100m2 phần thô: giá 320.000.000 triệu đồng
- Chi phí thi công xây nhà cấp 4 100m2 trọn gói: giá 450.000.000 – 480.000.000 triệu đồng (tính theo đơn giá dao động từ 4.500.000 – 4.800.000đồng/m2)
Lưu ý: Trên đây là chi phí dự trù chỉ mang tính chất tham khảo dành cho bạn đọc. Bởi lẽ sẽ tùy thuộc vào địa điểm xây dựng, phong cách thiết kế cũng như là chất liệu mà các gia chủ chọn lựa, những mức giá sẽ có sự thay đổi, tuy nhiên không nhiều. Thông thường tại mỗi thời điểm khác nhau thì đơn giá xây dựng cũng như trang thiết bị vật tư xây dựng thay đổi.
>> Xem thêm:
Bài viết trên là một số thông tin về mẫu thiết kế nhà cấp 4 3 phòng ngủ. Hy vọng những thông tin đó có thể giúp bạn có thêm các ý tưởng độc đáo để xây dựng cũng như thiết kế cho mình một công trình như ý. Mọi tư vấn thiết kế nhà cấp 4, quý khách hàng vui lòng liên hệ với chúng tôi Công Ty Thiết Kế Xây Dựng để được hỗ trợ tốt nhất nhé!
